Erenköy Ruh ve Sinir Hastalıkları Eğitim ve Araştırma Hastanesi / Erenkoy Mental Hospital
Ulusal Yarışma, 3. Ödül / National Competition, Third Prize
İstanbul , TR
Toplam kapalı alan / Floor Area: 50,000 m2
Ekip / Team: Kerem Piker, Nursen Gümüşsoy, Baran Aybars, Duygu Bingül Aydın, Zeynep Kaya, Perçin Özgen
Peyzaj Tasarımı: Kerem Piker, Nursen Gümüşsoy
Danışmanlar/ Consultants : Mustafa İspir Gürbü<
İstanbul , TR
Toplam kapalı alan / Floor Area: 50,000 m2
Ekip / Team: Kerem Piker, Nursen Gümüşsoy, Baran Aybars, Duygu Bingül Aydın, Zeynep Kaya, Perçin Özgen
Peyzaj Tasarımı: Kerem Piker, Nursen Gümüşsoy
Danışmanlar/ Consultants : Mustafa İspir Gürbü<
İstanbul’un iki ruh ve sinir hastalıkları hastanesinden daha az bilineni, Erenköy, ekonomik olarak orta üst sınıfın yaşadığı bir sosyal çevrenin içerisinde yer almasına karşın, fiziksel koşulları açısından sadece dünyadaki emsallerinin değil, aynı zamanda içerisinde bulunduğu çevrenin de ortalamasının epeyce altında. Hal bu ki, toplumun tüm bireylerinin, özellikle de dezavantajlı kesimlerinin, eşit yaşam koşullarına sahip olma hakkı var. Gündelik hayatımızın içerisinde yer almadığı için gözden kaçırdığımız bir kesimin içinde bulunduğu yaşamsal koşullardan bu yarışma aracılığı ile haberdar olduk. Yarışmayı, hem bireylerin toplumsal yaşantıya yeniden uyum sürecinde yaşadıkları mekânsal tecrübeyi iyileştiren, hem de toplumun dezavantajlı kesimlerle ilişkisini yeniden tanımlamayı deneyen bir girişim olarak görüyoruz.


Alandaki bütün yapılar, arazide herhangi bir ağaca zarar vermemek üzere mevcut yapıların yerine, ağaçlar arasında zamanla oluşmuş boşluklara, mevcut araç yolunun izine ve alanın güneybatısında yer alan büyük boşluğa yerleştirilmiştir.
Alandaki mevcut gabari, ağırlıklı olarak iki katlı yapılar tarafından belirlenmiştir. Zaman içerisinde, koruda üç katlı yapılar inşa edilmiş dahi olsa yapıların çoğunluğu ağaçların taçlarının altında yer almakta, bu da korunun hem içeriden hem de dışarıdan algısına olumlu bir katkı sağlamaktadır. Tasarım kararları alınırken korunun bu niteliği sürdürülmeye çalışılmış, yapıların ağırlıklı olarak iki katlı olarak düzenlenmesine ve peyzaj ile sürekli ilişkiler kurmasına azami özen gösterilmiştir. Önerilen gabariler, istisnai koşullar haricinde ağırlık olarak iki ve üç katlı yapılardan oluşmaktadır.
Yerleşkenin Sinan Ercan Caddesi üzerindeki mevcut girişi korunacaktır. Acil girişi halihazırda olduğu gibi daha işlek olan Bayar Caddesi’nden sağlanacak, ancak mevcut yerinden alanın kuzeybatı yönüne doğru kaydırılacaktır. Bu iki girişe ek olarak, alana Bayar Caddesi’nden bir giriş daha verilmiş, böylelikle korunun rekreasyon amaçlı kullanımının özendirilmesi amaçlanmıştır.

• İdari birim (karşılama, bekleme, kayıt, ziyaretçi görüşme, sosyal hizmetler, ofisler ve servisler)
• Tıbbi birim (hemşire bankosu, gözlem odaları, yalıtım ve yatıştırma alanları, nöbetçi doktor ve tedavi alanları)
• Yatma birimleri (tek kişilik odalar)
• Sosyal birimler (sessiz alanlar, terapi alanları, grup odaları)
Her bir birimin 14 yataklı ünite sisteminin iç yapısını bozmayacak şekilde ayrıştırılabilir yapılar olarak kurgulanması, alandaki farklı büyüklükteki boşluklara göre yerleşme imkanı sağlamaktadır. Birimlerin ayrıştırılabilir yapılar olarak düzenlenmesi, farklı zamansal kullanımlara sahip yapıların işletme giderlerini de bağımsız olarak düzenlemeyi mümkün kılmaktadır.

Kliniklerin çeperinde oluşturulacak araç yolu (1.Ring Yolu) ile hem kliniklere ulaşılacak, hem de gerekli servisler sağlanacaktır. Bu yol aynı zamanda klinikler ile mevcut Pul Pavyonu ve Kızılay Pavyonu yapılarına yerleşen sosyal birimlerin, perma kültür alanlarının ve açık spor sahalarının da bağlantısını sağlamaktadır.
Klinik yapılarının yerleşiminde açık alanların en verimli ve sürdürülebilir şekilde kullanılması maksadıyla, taşıyıcı sistemin ağaçların kök sistemine zarar vermeyecek şekilde tekil temeller ve konsollarla teşkil edilmesi sağlanmıştır. Böylelikle yapılar ağaç gövdelerine konsol olarak uzansa dahi kökler korunacaktır. Avluyu çevreleyen yapıların iki katı aşmamasına, yapıların ağaçların taçlarının altında kalmasına özen gösterilmiştir. Klinikler tarafında yapım kolaylığı açısından çelik taşıyıcılı sistem tercih edilmesi, kuru duvar sistemleri ile yerinde imalatların kolaylaştırılması, tekrar eden modüler cephe elemanlarının kullanılması gibi kararlar, yerinde yapım sürecini kısaltan, inşaatı kolaylaştırıcı tercihlerdir. Böylelikle yapım esnasında mevcut dokuya verilecek tahribat en aza indirilebilecektir.

Avlular ve birimler, kliniklerin işlevlerine göre gruplanmış, böylelikle avluların kendi içerisinde benzer kullanıcıların yer alması sağlanmıştır. Ancak avlular arasındaki sınırların istenildiği takdirde gevşetilmesi ve geçişlerin sağlanması mümkündür.
Kliniklerin bulunduğu bölgeden kuzeybatıya doğru ilerlendiği takdirde, aşama aşama açık alanların yarı kamusal mekanlardan kamusal mekanlara doğru çözüleceği bir işlevsel dağılım gerçekleştirilmiştir. Burada maksat, korunun salt bir hastane bahçesi olarak düzenlenmesinden öte, yakın çevre için de bir rekreasyon alanı olarak yeniden tarif edilmesidir. Böylelikle koru, rehabilitasyonun devam eden aşamalarında bireylerin toplumla ilişkisinin yeniden inşa edilmesi için bir tür zemin işlevi de görebilecektir. Bu karar doğrultusunda açık alanların tasarımında, spor sahaları, çocuk oyun alanları, yürüyüş ve bisiklet yolları, açık amfi gibi kullanımların yanı sıra klinik sakinleri tarafından işlenebilecek perma-kültür alanları, bu alanda yetiştirilen sebze meyvenin zaman zaman satışının gerçekleştiği bir pazar ve kermes alanı önerilmektedir.
Sosyal kullanımlara yönelik işlevler Pul Pavyonu ve Kızılay Pavyonu binalarının içerisine yerleştirilmiştir. Pul Pavyonu BAHAR, Kızılay Pavyonu sanat atölyeleri için kullanılacaktır. Kızılay Pavyonu saatlik düzenlemelerle hem klinik sakinlerinin hem de yakın çevrenin kullanımına açılabilecektir. Yapılar ahşap atölyesi, seramik atölyesi, fotoğraf stüdyosu, dans stüdyosu, satranç okulu gibi mekanları ve terapi alanlarını içermektedir.

Psikoterapi merkezi ve uyku kliniği alanın kuzey çeperine, Sinan Ercan Caddesi boyunca yerleştirilmiştir. Yerleşkenin hemen kuzey girişinden ulaşılabilen yapılar, acil servisin mevcut yapısının boşalttığı alana (nöroloji kliniği ve uyku servisi) ve Tevfik Sağlam Hemşire Koleji yapısına (psikoterapi merkezi) yerleşmiştir.
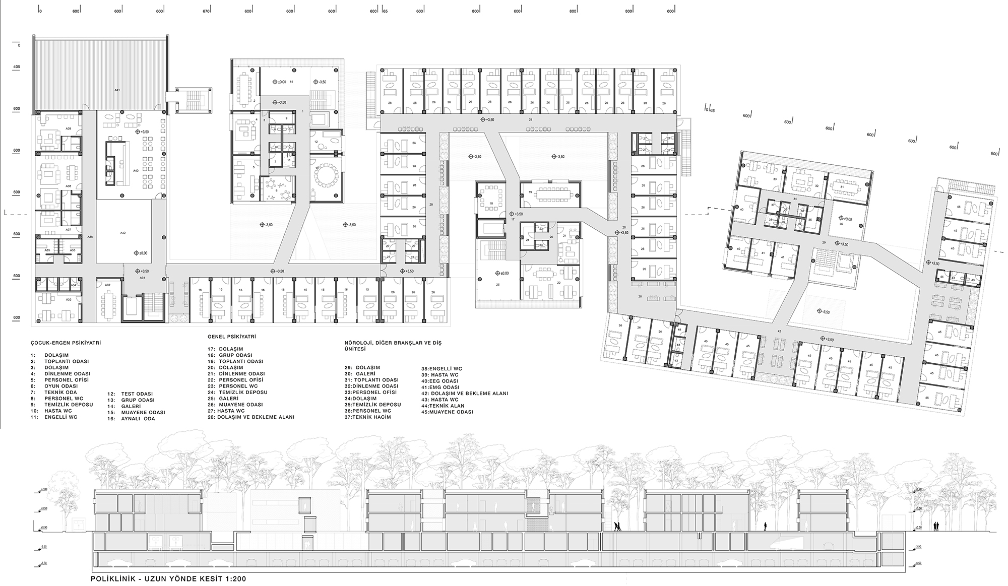
Poliklinik yapıları alanın güneybatısında mevcut spor sahasının bulunduğu alanda tasarlanmıştır. İki bodrum üzerine inşa edilen ve yer üstünde iki katlı olarak planlanmış olan poliklinikler, üç grupta toplanmıştır; çematem ve çocuk psikiyatri kliniği; genel psikiyatri kliniği; amatem, nöroloji de diğer branşlar klinikleri. Kliniklerin tamamına erişim idari ve tıbbi birimlerin içerisinde yer aldığı giriş bloklarından sağlanmaktadır. Bu bloklar köprüler ile muayene odalarının ve bekleme alanlarının bulunduğu doğrusal yapıya bağlanır. Bloklar arasında yatay ilişkiler süreklidir.
Poliklinikler yapısı, bodrum kat ve 1. Kat seviyesinde acil bloku ile bağlantılıdır. Acil yapısına erişim iki farklı yoldandır. Ambulans girişi Bayar Caddesi’nden sağlanmıştır. Proje alanının kuzeybatı sınırına paralel olarak düzenlenmiş olan araç yolu sadece ambulansın kullanımı içindir. Acile diğer araçlarla ulaşım ise yerleşkenin ana girişinden, 2. Ring yolu aracılığı ile sağlanır. Acil yapısının müdahale birimleri giriş katında, idari birimleri ise 1. Katta yer alır. Yapının terasında genel kullanıma açık bir kafeterya bulunmaktadır.
Poliklinikler ve acil yapısının bağlantılı olduğu 1. bodrum katında çökük bahçeler aracılığı ile doğal ışık alabilen mekanlar tasarlanmıştır. Bu kat, acil ve poliklinik bölümlerinin tamamının kullanımına hizmet eden laboratuvar, eczane, radyoloji gibi tıbbi birimlerin yanı sıra yemekhane, kafeterya gibi sosyal alanlar ile çamaşırhane, mutfak gibi servis alanlarını, sığınak ve teknik alanları içerir. 2. Bodrum ise otopark için ayrılmıştır.
Polikliniklere otoparktan yaya ulaşımı üç noktadan sağlanmaktadır. Otopark ulaşım çekirdekleri açık alanlara erişim sağlamakta, kullanıcılar bu çekirdeklerden poliklinik girişlerine yönlendirilmektedir. Böylelikle polikliniklerin çalışmadığı saatlerde de otoparkın kullanılması imkan dahilindedir.
Konferans salonu, bağımsız bir yapı olarak ele alınmış, poliklinikler ve idari bina arasında yer alan boşlukta, ağaçların köklerine zarar vermeyecek bir yer altı yapısı olarak tasarlanmıştır. Böylelikle hem poliklinik yapısının altındaki kapalı otoparktan servis alması sağlanmış, hem de poliklinik saatleri haricinde de yapının kullanımına imkan tanınmıştır. Yakın çevrede bu kapsamda bir salonun mevcut olmaması, yapının salt tıp alanındaki etkinlikler için değil, pek çok farklı sosyal ve kültürel organizasyon için de kullanılma ihtimalini arttırmaktadır. Bu anlamda konferans salonu bölge için başlı başına bir sosyal odak olarak düşünülmüştür. Yapının çatısı yansıma havuzu olarak düzenlenmiş, böylelikle yapının peyzaj ağının bir parçası haline getirilmesi planlanmıştır.
Projenin etaplar halinde inşa edilmesi öngörülmektedir. Buna göre öncelikle açık spor sahasındaki klinik yapılarının tamamlanması, acil servisin ve poliklinik yapıları ile burada oluşturulacak teknik altyapının kullanıma açılması (1.etap); Klinikler tarafındaki mevcut yapıların yıkımının yapılması, kliniklerin ve ekt binasının inşası (2.etap); idari bina, nöroloji kliniği ve psikoterapi merkezinin yeniden düzenlenmesi (3.etap); sosyal birimlerin ve açık alanların düzenlenmesi, korunun ıslahı ve konferans salonunun kullanıma açılması (4. Etap), hedeflenmektedir.
TESPİTLER
Yarışma alanı ağırlıklı olarak bir konut yerleşimi içerisinde yer almaktadır. Proje alanı, 4 km’lik bir çember içerisinde (yarım saatlik yürüyüş mesafesi) kamu kullanımına açık tek yeşil alandır. Alan, hemen yakınında bulunan üç cep parkını (Zübeyde Hanım Parkı, Prof. Dr. Kriton Curi Parkı, Hürriyet Çocuk Parkı) bir arada tutan, bölgesel bir yeşil odak niteliğindedir.
Proje alanının ağaç yoğunluğuna bakıldığında kolaylıkla görülebileceği gibi alan iki ana karakteri barındırmaktadır. Alanın kuzeydoğu (KD) bölümü yoğun ağaçlardan oluşmaktadır (KORU). Alanın güneybatı (GB) bölümü ise zaman içerisinde ihtiyaca bağlı olarak inşa edilen pavyonların etkisi ile diğer dilime göre daha düzensiz ağaç toplulukları içermektedir. (BAHÇELER) İki bölgeyi birbirinden ayıran yaya yolu, alanı KD GB yönünde kat eden iki doğrultudan bir tanesidir (1.AKS). Bu iki karakter haricinde güneydoğu çeperinde alanın en ağaçsız bölümünde açık spor sahaları yer almaktadır.
Alanda yer alan diğer bir önemli doğrultu ise bugün acil girişini açık spor sahalarına bağlayan yoldur (2. Aks). Ancak yapıların kullanımlarına ilişkin kararların zaman içerisinde değişmesi, parçacıl yapısal ekler gibi sebeplerle zaman içerisinde ilişkiler ağında önemini yitirmiştir. Buna karşılık bu doğrultuyu dik olarak kesen ve alanı KB DG yönünde kat eden üçüncü yol, halen işlevsel varlığını sürdürmektedir (3.Aks)
Yapıların bugünkü işlevleri, güncel ihtiyaçların giderilmesine yönelik olarak herhangi bir bütünlük içermeden belirlenmiştir. Bu durum, alanda bütüncül bir açık alan stratejisi oluşturmayı engellemektedir.
Mevcut kullanımda yapıların etrafındaki bahçeler, korunun tamamından tel çitler ya da kapalı duvarlar ile ayrılmıştır. Her iki durum da kendine özgü sorunlar üretmektedir. Korunun kamu erişimine açık yapısı, tel çitlerle ayrıştırılmış klinik kullanıcıları için yaralayıcı bir ortam sağlamaktadır. Öte yandan duvarlar arkasındaki klinik bahçeleri ise bir başka soruna yol açmakta, korunun içerisinde kapalı adalar oluşturmakta ve yine kullanıcıları bu duvarların arkasına hapseden bir algı oluşturmaktadır.
Korunun zengin bir bitki örtüsü, mekânsal gücü yüksek bir ağaç dokusu vardır. Ancak açık alanların özellikle poliklinik saatlerinde otopark olarak kullanılması, klinik bahçelerinin bütüncül olmayan kurgusu, yapıların zaman içerisinde salt ihtiyaç bazlı olarak inşa edilmesi gibi sebeplerle korunun mekânsal kaliteleri epeyce geri planda kalmıştır. Alanda gerek klinik sakinleri, gerek çalışanlar, gerekse yakın çevrede yaşayanlar için spor sahasının haricinde herhangi bir açık hava etkinliğine uygun mekan bulunmamaktadır.
Yarışma alanı ağırlıklı olarak bir konut yerleşimi içerisinde yer almaktadır. Proje alanı, 4 km’lik bir çember içerisinde (yarım saatlik yürüyüş mesafesi) kamu kullanımına açık tek yeşil alandır. Alan, hemen yakınında bulunan üç cep parkını (Zübeyde Hanım Parkı, Prof. Dr. Kriton Curi Parkı, Hürriyet Çocuk Parkı) bir arada tutan, bölgesel bir yeşil odak niteliğindedir.
Proje alanının ağaç yoğunluğuna bakıldığında kolaylıkla görülebileceği gibi alan iki ana karakteri barındırmaktadır. Alanın kuzeydoğu (KD) bölümü yoğun ağaçlardan oluşmaktadır (KORU). Alanın güneybatı (GB) bölümü ise zaman içerisinde ihtiyaca bağlı olarak inşa edilen pavyonların etkisi ile diğer dilime göre daha düzensiz ağaç toplulukları içermektedir. (BAHÇELER) İki bölgeyi birbirinden ayıran yaya yolu, alanı KD GB yönünde kat eden iki doğrultudan bir tanesidir (1.AKS). Bu iki karakter haricinde güneydoğu çeperinde alanın en ağaçsız bölümünde açık spor sahaları yer almaktadır.
Alanda yer alan diğer bir önemli doğrultu ise bugün acil girişini açık spor sahalarına bağlayan yoldur (2. Aks). Ancak yapıların kullanımlarına ilişkin kararların zaman içerisinde değişmesi, parçacıl yapısal ekler gibi sebeplerle zaman içerisinde ilişkiler ağında önemini yitirmiştir. Buna karşılık bu doğrultuyu dik olarak kesen ve alanı KB DG yönünde kat eden üçüncü yol, halen işlevsel varlığını sürdürmektedir (3.Aks)
Yapıların bugünkü işlevleri, güncel ihtiyaçların giderilmesine yönelik olarak herhangi bir bütünlük içermeden belirlenmiştir. Bu durum, alanda bütüncül bir açık alan stratejisi oluşturmayı engellemektedir.
Mevcut kullanımda yapıların etrafındaki bahçeler, korunun tamamından tel çitler ya da kapalı duvarlar ile ayrılmıştır. Her iki durum da kendine özgü sorunlar üretmektedir. Korunun kamu erişimine açık yapısı, tel çitlerle ayrıştırılmış klinik kullanıcıları için yaralayıcı bir ortam sağlamaktadır. Öte yandan duvarlar arkasındaki klinik bahçeleri ise bir başka soruna yol açmakta, korunun içerisinde kapalı adalar oluşturmakta ve yine kullanıcıları bu duvarların arkasına hapseden bir algı oluşturmaktadır.
Korunun zengin bir bitki örtüsü, mekânsal gücü yüksek bir ağaç dokusu vardır. Ancak açık alanların özellikle poliklinik saatlerinde otopark olarak kullanılması, klinik bahçelerinin bütüncül olmayan kurgusu, yapıların zaman içerisinde salt ihtiyaç bazlı olarak inşa edilmesi gibi sebeplerle korunun mekânsal kaliteleri epeyce geri planda kalmıştır. Alanda gerek klinik sakinleri, gerek çalışanlar, gerekse yakın çevrede yaşayanlar için spor sahasının haricinde herhangi bir açık hava etkinliğine uygun mekan bulunmamaktadır.

















kpm-kerem piker mimarlık
abide-i hürriyet cad. no.105 daire.4
sisli, ist, TR
+90 212 292 8457
info@kerempiker.com
abide-i hürriyet cad. no.105 daire.4
sisli, ist, TR
+90 212 292 8457
info@kerempiker.com