Kemerburgaz'da Okul / School in Kemerburgaz
Teklif Projesi / Concept Design
İstanbul, TR
Toplam kapalı alan / Floor Area: 16,000 m2
Ekip / Team: Kerem Piker, Burçak Sönmez, Mahmut Ünal, Duygu Bingül
Danışman / Consultant: Bilge Kobaş, Bülent Deveci
3b görseller / Renderings: Ma Image
İstanbul, TR
Toplam kapalı alan / Floor Area: 16,000 m2
Ekip / Team: Kerem Piker, Burçak Sönmez, Mahmut Ünal, Duygu Bingül
Danışman / Consultant: Bilge Kobaş, Bülent Deveci
3b görseller / Renderings: Ma Image
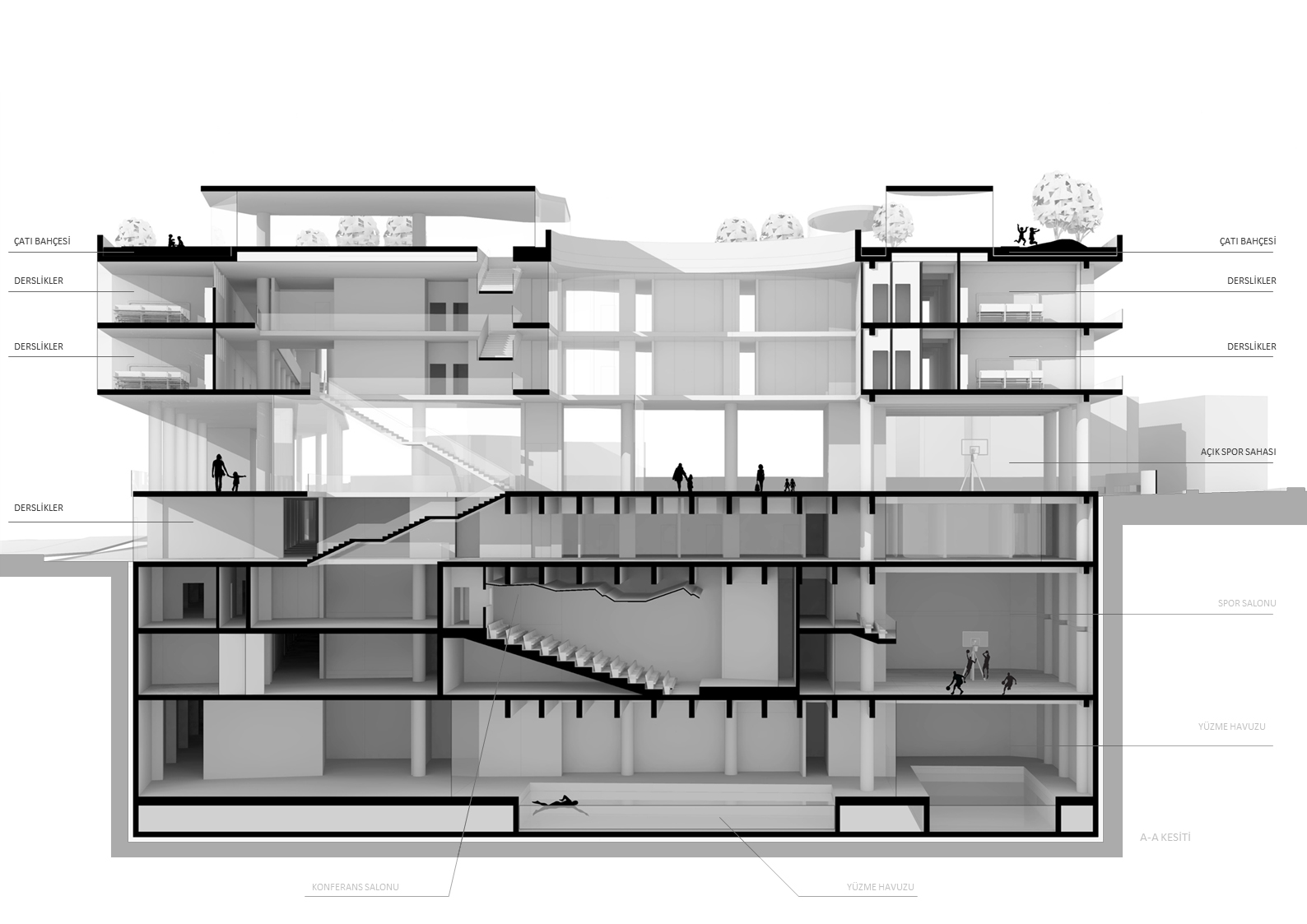
DOK is a private school project in Kemerburgaz, İstanbul. School has a very tight program for such a small and irregular plot. According to the building code, a garden on the ground level in a certain size is a must and the height limits does not allow to built more than 3 floors.The result is a Corbusien flying box over piloties with a green terrace on top.























kpm-kerem piker mimarlık
abide-i hürriyet cad. no.105 daire.4
sisli, ist, TR
+90 212 292 8457
info@kerempiker.com
abide-i hürriyet cad. no.105 daire.4
sisli, ist, TR
+90 212 292 8457
info@kerempiker.com